backBack to Search Results

6 Bedroom house - mid terrace £415,000

Price Guide - £415,000

69a Penny Street,
Lancaster LA1 1XF Price Guide

Share This Property

  • INCOME PRODUCING STUDENT HMO
  • HEART OF THE CITY CENTRE
  • VERY WELL MAINTAINED THROUGHOUT
  • TWO SHOWER ROOMS
  • FUTURE PROOF INVESTMENT
  • EXCELLENT LETTING HISTORY
  • LOCATION LOCATION LOCATION
  • NO CHAIN
  • Description
  • Floor Plan
  • EPC
  • Map

***INCOME PRODUCING HMO STUDENT PROPERTY*** ***6 LETTINGS BEDROOMS*** 2 SHOWER ROOMS *** HEART OF THE CITY CENTRE *** EXCELLENT LETTING HISTORY ***

This provides an opportunity for buyers to acquire a ready-made investment with the potential for rental income or future appreciation.

The property rests within walking distance of all of the amenities Lancaster has to offer including gyms, pubs, clubs, shops, eateries, and health services.

The property is let for this 2025/2026 academic year at 6 x £129 PPW x 48 (per person per week) having an expected annual gross income of £37,152.

The property is sold with furniture and white goods included in the sale with the exception of the tenant's personal belongings (such as any furniture they may have brought to the property).

*This property currently has a valid HMO license in place granted by the local authority (a new owner will have to apply for their own license upon completion).

A current landlord's gas safety certificates are in place along with EICR (electrical installation condition reports).

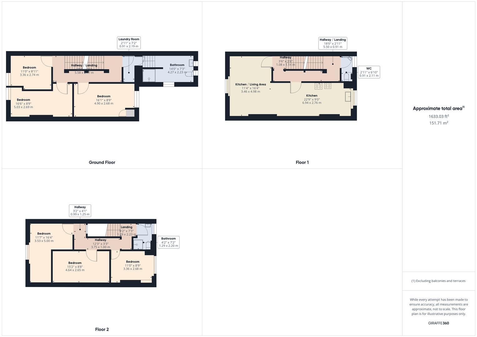
Entrance hallway

Stairs up to the first floor.

First Floor Hallway

Stairs to the second floor, utility area.

Utility Area

Washing machine and dryer, cupboard housing consumer unit and steps down to the shower room.

Shower Room

Windows to side and rear, shower cubicle with Mira electric shower, wash hand basin, laminate floor, radiator, extractor fan, W.C.

Bedroom One

Window to front, cupboard housing combi boiler, carpeted floor, radiator.

Bedroom Two

Window to front, carpeted floor, radiator.

Bedroom Three

Window to rear, carpeted floor, radiator.

Second Floor Landing

Stairs to the third floor.

W.C

Window to the rear, laminate floor, radaitor, W.C.

Kitchen/Diner/Lounge

Windows to front and rear, range of matching wall and base units, two electric ovens and extractor hood, dishwasher, two fridge/freezers, double stainless steel sink, dining table and chairs, radiators, two settees, laminate floor, TV.

Third Floor

Shower Room

Window to rear, wash hand basin, shower cubicle with Mira electric shower, extractor fan, laminate floor, W.C.

Bedroom Four

Window to rear, carpeted floor, radiator.

Bedroom Five

Skylight, carpeted floor, radiator.

Bedroom Six

Window to front, carpeted floor, radiator.

Investment Information

This property is let for this 2023/2024 academic year at 6 x 119 PPW x 48 (per person per week) offering an annual gross income of 31,049.

The property is also advertised for the next 2024/2025 academic year at 6 x 129 PPW x 48 (per person per week) having an expected annual gross income of 37,152.

The property is sold with furniture and white goods included in the sale with the exception of the tenant's personal belongings (such as any furniture they may have brought to the property).

*This property currently has a valid HMO license in place granted by the local authority (a new owner will have to apply for their own license upon completion).

A current landlord's gas safety certificates are in place along with EICR (electrical installation condition reports).

Tenure Freehold
Council Tax Band (A ) 1505.37

EE Rating
  • PropertyProperties

Travel By:

  • Driving
  • Walking
Click a location

Some kind words from our customers

See More Our Google Reviews

We would like to thank you both very much for all your excellent efforts on our behalf to sell our property. We are very happy with the selling price you have achieved.

B Robinson

As I'm now up to a full complement of tenants I just want to say thank you for all you've done for me these last six months. Your support has been invaluable and you [Isobel Burns] are a credit to Mighty House.

L Kirby

I just wanted to say a big thank you to you and your team. From the first enquiry about my tenancy right up to my termination date you have all been very friendly and helpful. The whole process was so easy and quick. I have rented on several occasions with other estate agents in the Lancaster area and I have to say that your company have given the best service without doubt. If I ever have cause to rent in the future you will be my first port of call. Please pass on my thanks to all your team.

P Hodges

I am very grateful to all of the mighty house team especially to Peter Charnley who personally dealt with the sale of our house. They all go above and beyond to ensure everything progresses and runs as smoothly as possible. They keep you well informed and up to date of the process throughout, I would defiantly recommend mighty house. A big thank you once again!!!

K Holmes

Really quick to respond to call out. Problem sorted we have heat again

L Peterson

Great renting company. In case of any problems, they quickly deal with them.

M Szyniszewski

We would like to thank you for being fantastic agents and also would be grateful if you could pass on our appreciation to the Landlord. We enjoyed living in the property and you were much easier to deal with than any agents we've encountered previously.

H & C Legat

I can't thank you enough for everything you have done. Words can't express how grateful I am. I can now care and see my mum and she can see her grand children.

Mrs M Mclee

To All at Mighty House. Just wanted to say thank you for your help in our "efforts" to buy [property] Road. It just wasn't the outcome we wanted but realise it wasn't for the want of trying by ourselves or your team. Special thanks must go to Isobel who I know tried her best. Guess it just wasn't mean to be. We keep our fingers crossed that our current attempts to buy a house go smoother and quicker. Thanks again.

J Nicholson & family

Thank you very much for all your kind help in the process of our new property purchase. Had a wonderful experience....

Mr Patel

Thank you very much for a fast efficient and professional service. All the staff were polite and helpful and I was very pleased with the outcome. I would certainly recommend you to friends and family. Once again many thanks.

Mrs J Coulson

To Mark and Team, With best wishes for Christmas and the New Year. Thanks for all your help & guidance with the house sale. The speedy action was awesome!!!

Mr & Mrs Bowskill

We are so pleased that we decided to use Mighty House to sell our house. Mark told my husband and I that he had a great deal of experience in the estate agency business and it certainly showed. He knew exactly the type of person that would be ideally suited to our home, and sold out house within a few weeks, in fact he actually sold it twice as our first buyer dropped out due to personal reasons. We mainly dealt with Isobel in the office who was fantastic, efficient and friendly. We were very pleased with the brochure Mighty House produced and would be more than happy to recommend them. Thank you mark and Isobel for everything!

Sarah

I would like to say a huge thank you to Peter and his team especially Isobel who went above and beyond to help us try and find a home for my daughter to rent. The service we received was AMAZING. The courtesy that the whole team gave me certainly puts Mighty House firmly at the forefront of my mind when thinking of premier customer service. I would like to add that one of the main reasons Mighty House stood out for me was after 3 months of discussion with estate and letting agents in Lancaster, Mighty House was the only company we faced who had staff with nice manners and were able to provide good customer service, I’m afraid this is not so with all agents in Lancaster. They came across as the only letting agents who actually cared about the customer standing in front of them, rather than just trying to palm off excuses or not listening at all as was the case with many others. All in all excellent service received. Thanks Guys. :)

Katharine and Katriona

Many thanks for all your help and advice. We would certainly recommend Mighty House and will certainly be in touch again when we are in need of your services.

Heather

And thank you and the team at The Mighty House for the great service and support that you have provided to us throughout the long saga of trying to sell 5 Windermere Rd. Being at such a distance has been really difficult for us but you really went the extra mile for us and we really do appreciate it. I wish you all the best with growing the business. I am sure that it will go from strength to strength with the excellent service you provide.

Anne-Mree & Ron

Mighty House gave me a super platform to advertise my property, accompanied with quick and responsive customer service to help me rent my house within 2 days of going live. I would definitely recommend Mighty House as a economical and effective way to sell or rent your property.

Julia

I have been extremely happy to rent from Mighty House and I am really grateful for all your help in the past one year. I will recommend Mighty House to my friend and anyone else for sure. I think I speak for everyone at 64, Coulston Road when I say that your management has been first class!

Mr Misra

I am delighted at the professional manner and dedication of the staff at Mighty House in achieving the expedient sale of my property for a great price and making it stress free. Many thanks.

Mr Bradshaw

After visiting the showroom at 83 Bowerham Road we instructed Mighty House to sell our house. Mark Fletcher did a thorough job valuing, assessing and photographing the property. His advice was always helpful and forthcoming. He took a personal interest in promoting the sale and efficiently conducted viewings and he got us a good price for the property. He kept us in touch with developments as the sale proceeded. We certainly would recommend Mighty House as a helpful and efficient local estate agency.

David and Judy

I choose Mighty House because they were an independent firm with a local shop front as well as being linked in to all the on line services which are now a requirement for house sales - I felt I was getting the best of both worlds. I have already recommended their services to my friends and am happy to offer a wider testimonial here. Their staff were always helpful and Mark, in particular, offered a friendly and very competent service. Mark was always available to talk through any issues, and the local office meant that I could have a ‘face to face’ chat when I felt the need to talk through any particular situations. Mark’s wealth of experience of selling houses meant that I felt able to trust the advice I sought at various points in the sale. I choose to use one of their services where I showed prospective purchasers around my house and whilst this deal offered very good value for money, I never felt a less valued client because of my choice of using one of their cheaper schemes. I would definitely use their services again should I ever move house again!

Claire

Following a relocation from London to Lancaster, we decided to start looking into purchasing our first property. We contacted a number of estate agents in Lancaster and viewed a range of properties. We initially offered on a property with another agent but the service we received as buyers we felt was very poor and not working in our best interests. We contacted Mighty House as they had similar properties for sale. From our first contact with Mighty House, we felt that they listened to what we wanted and ensured that they arranged viewings that were appropriate; a number of other agents just seemed to want to show us everything they couldn't sell rather than anything that ticked our boxes. Mighty House worked hard to ensure that both our needs and the seller’s needs were met and we were delighted with the outcome. They were understanding of our particular circumstances throughout and ensured that we and the vendor were kept abreast of developments as they happened. Mighty House have been honest and transparent with us throughout the process and have even recommended an excellent Solicitor who helped move the process along extremely quickly through to completion. We couldn't recommend Mark and the team at Mighty House any higher; they supported us through the roller coaster of buying our first property and were a delight to negotiate with.

Nathan & Vicky

A great service from start to finish, professional and friendly staff. It was a rather bumpy ride selling my late aunts bungalow especially when the first sale fell through but Mighty House had it back on the market within hours and viewing within days. Once the sale was agreed they were very helpful in sorting out any little niggles helping to save time and money with legal costs. Overall a high class service at a very reasonable cost. Many thanks from the Haslam family especially to Mark and Isobel.

Mrs Steph Haslam

Excellent service throughout the duration of my tenancy

Matthew Wood

Great service from start to end. Would recommend.

Dr Green

Fantastic service in my first year from Peter and team. Any issues resolved swiftly.

George Kushnov

Thank you Peter and team

John Brennen

Thank you Peter and team

Matt Garside

Good service

Mikel Patel

I encountered a few small problems, which were dealt with efficiently

Sara Lahar

Enjoyed my time within this property and dealing with Mighty House. Thank you.

Lucy Wilson

Clear advert, professional service given by all. No problems, would recommend

Craig Gould

Found property on internet, a clear advert, dealt with peter who was very good and answered all questions professionally. Would recommend. Isobel is also lovely to deal with

Lynda Yates

Happy with everything, would recommend

Patrick Bishop

Very good service from Peter and Isobel, would come back again, and have recommended to many friends

Maysara Adel Ali Sayed

Good service, We've used them more than once and would recommend

David Cunlffe & Elsa Jean Kinnish

Really good service. Saw advert in paper, clear with full details. Our queries were handled immediately

Paul & Michelle Good

Saw on Rightmove, Ad not complete, but Peter explained all, dashing suit, have dealt with other estate agents before but MightyHouse was very professional -its like dining at a fine restaurant

Mr Pavel Bogolyubov & Mrs Natalia Bogolyubova

Very helpful. I saw the property on Rightmove. The advert was good. Easy and no hassle

Benjamin Allen Maunder

Very happy with service, we had a few issues with the rented accommodation, which were sorted sensibly within good timescales, which we were happy about. Highly recommended

Mr George Fragkiadakis & Ms Anastasia Legga

We recently had heating problems. There was a quick response to these, so we would recommend Mighty House

Mr Tim Buthcer & Mrs Sian Butcher

Dealt with peter - fantastic service

Jane Ritchie

Very happy with the service and would recommend.

Geoffery F Marshall & Janice E Marshall

Good service, would recommend.

Megan Lauder

When we spoke to Isobel, she was fantastic - very informative. We were shown round the property by Peter - excellent viewing.

Mr S & Ms J Edwards

Fantastic service from Isobel, was a smooth process. Also suggested alternative properties. Would highly recommend.

Ms Star & Mr Harris

Fantastic during my brief tenancy and helped me

Terry Powerst

Was recommended by a friend, dealt with Peter, Peter was absolutely brilliant, any issues were dealt with within a week, would strongly recommend

Zoe Louise Clarke

Just a note to say how very happy we are with the service provided to us by the team at Mighty House. We are landlords with two student let properties at Lancaster-we initially started with one house for our daughter who was at University there. As we were new to the market with the first property we relied heavily on Peter who gave us great practical advice on the student let process. This continued with the second property and again Peter's advice was invaluable particularly relating to the renovations required and the specific requirements for student houses. We have had contact with most of the staff at Mighty House and find them to be very genuine, friendly and helpful and all the requests made by ourselves or our tenants have been dealt with in a timely and professional manner. A special mention for Isobel who goes 'above and beyond' in her efforts to assist both the tenants and landlord and is a pleasure to deal with.

Peter F.

Excellent team. Many thanks to Peter and team and they made me change my review from bad to excellent by giving the best service ever. I would like to recommend might house as a trust worthy Agency for renting a house. Thank you Peter for all your support and regret that I got a wrong impression of Mighty House.

Uday K

After several decades with my property with a "nationwide" organisation, finally got fed up with lousy service, high prices and tenant gouging. Mighty House, despite the slightly silly name, have been brilliant. They seem to really care, respond quickly to any issue, problem, difficulty, etc ... and costs are very reasonable. In my opinion, worthy of six stars.

Mr Schick

I bought a house through Mighty House and the experience was fantastic. Really helpful guidance all the way through the process. Peter and the team are highly recommended.

Mr Cookson

I'd just like to say a personal thank you to Isobel at Mighty House. At one point during my purchase it all seemed to be going pear shaped and I thought I was going to have no choice but to pull out. Thanks to Isobel's friendly approachable nature, help, advice and guidance - I have just spent my first night in my new home. Once again, thank you.

J Thorpe

I recently used Mighty House to rent out my flat in Lancaster. I did have a few problems initially with lack of communication, but I spoke to Isobel and she gladly sorted everything out for me, and went above and beyond to help me. I couldn't be more grateful

Cheryl L

The team at Mighty House are absolutely brilliant. They went out of their way to ensure my tenancy was sorted before an important deadline. You guys deserve 6 stars if that were possible. Highly recommended!!! Anisa

Anisa A

This company knows the market and makes every effort to find the right house for you - and arrange a viewing as soon as possible. Very friendly staff especially Isabelle and John. Many Thanks

Christine B.

Had a great experience renting from this company. The process was easy, the customer service very friendly and professional and any queries etc. we had were promptly dealt with.

Alefiyah J.

Mighty house provide a responsive and professional service.

Mike J.

Really quick to respond to call out. Problem sorted we have hear again.

larisha P.

I am very grateful to all of the mighty house team especially to Peter Charnley who personally dealt with the sale of our house. They all go above and beyond to ensure everything progresses and runs as smoothly as possible. They keep you well informed and up to date of the process throughout, I would defiantly recommend mighty house. A big thank you once again!!!

Kenise H.

Now the sale has gone through (finally), I would like to thank you for your patience with us through out the process and also for responding promptly and politely to my many emails and phone calls. Thanks again.

Ruth S.

It is great to have an efficient and reliable managing agent which I can trust, essential when I live 200 miles away!

Peter H.

I’m really happy with how you and the team are working and I look forward to increasing my portfolio with you in the future.

Richard H.

Excellent feedback of viewings and during sale process. Important as we don't live in the area.

Mr Lees

I used both the selling and letting service and couldn't have asked for more. Thank you John for all your help and courtesy, am so happy in my new house.

Mrs S.

The pricing options were clear on the website. We felt the process was well handled from start to finish.

Previous vendor

Quick responses to emails and very flexible with viewings.

Previous vendor

John took ownership, followed up on calls and couldn't help enough! Thank you.

Lucy E.

The advertising, marketing and advice during negotiations were very good. Excellent relationship between yourselves and your sales manager John Davenport. John was always courteous, positive and available for consultation. His experience undoubtedly helped achieve a satisfactory sale inside 6 winter months.

Mr Winder

Once my offer on a house was accepted the communication by Mighty House was very clear and speedy. It was also very helpful. Thank you Greg.

Dr Pitt

What impressed you most about our service? 1. Contact regarding imminent viewings 2. Ease of parking close to the office 3. Knowledge, friendliness and helpfulness of John Davenport. 4. Mighty House dealt with all aspects of the sale.

Mr Pye

What impressed you most about our service? Attention to detail, thoroughly professional in dealing with purchasers requirements and returning calls!

Mr & Mrs Tilley

The inclusive approach is high on the list. The service from John and Greg was done in a friendly manner and contact was regular. Support and information available at all times during the process. It was a painess process that I felt to be part of but lead exceptionally well by the Mighty House team.

Mr Pye

The full service, recommending properties which meet my requirements, advising and arranging refurbishment and then letting. All the staff are knowledgeable, professional, friendly and approachable.

Mr Homa

Thank you very much for you prompt reply. I can tell you it is very refreshing to talk to an Estate Agent who wants to do his job. I have been looking for a property for 9 months and you are the only one who !! I repeat, only one, who answered my first enquiry and knew what I was talking about but then went on to engaged with me asked what I was looking for etc etc. And on the same day sent me details of 4 other property’s that I may be interested in. Thank you it was a pleasure to discuss things over with you. What the norm is... I ring an estate agent... they often don’t even know the property I am talking about .. they never ring back ... so that’s that’s the end. I will keep and eye out at property’s that are been sold by Mighty house in the future. Once again thank you Greg.

Mrs O.

I would just like to say thank you to you and the team at Mighty House on behalf of our family for your handling of the sale of our late father's home. We appreciate the speed and efficiency with which the whole process was dealt with from start to finish. This helped us greatly in what is a difficult time.

Previous vendor

Constant communication between you and us. Kept us informed of every development. The promotion of our property was way above what we expected. Staff, both on the phone and face to face were brilliant. Remarkable job done for us. Well done and sincere thanks.

Mr & Mrs Todd

John & Greg. Your customer service is 1st class. I liked their honesty, knowledge, communication skills and professionalism. Also your website is great, it makes some of your competitors look very amateurish. Thanks to John, Greg & all the team. As a family we will not hesitate to use you for future rental/selling/buying and property needs. I wish I had known about you sooner.

Matthew

No Stress at all, was very pleased at how fast my property sold.

Mrs Wilson

Quick response to a viewing. Let the house speak for itself without hard sales patter but answered any questions in a professional manner during the viewing and again when we rang up with some questions. The prompt response at finding the answers for us.

Mr Sykes

The knowledge skills & abilities of the team. As owner Peter is both approachable and available. The complete staff team iare friendly, knowledgeable and well informed.

Maggie

Kept me informed as to progress

Previous vendor

Quiet confident and effecient.

Previous Purchaser

Amazing service at an amazing price! Your knowledge and how involved you were. Very helpful!

Miss Hill

Caring and courteous at all times. I was selling late mothers property, knowing everything was being dealt with in this manner helped a great deal.

Mrs S.

Friendly, thorough staff - Greg very helpful. Kept to promises, kept informed through the process. Box of chocolates at the end was a thoughtful touch.

Mr W.

Excellent personal service

Ms Towers

John's patience, knowledge and much needed sense of humour. Many thanks for all the help.

Mrs McArthur

Friendly, courteous + personal service with regular contact throughout the selling process, dealt with empathy and understanding following bereavements

Mrs McMenanin

Always called back when you said you would. Flexible + professional. Very good at mediating terms between both parties and ensuring all needs were met. Highly professional + highly recommended quality personal service.

Karen

Informed of appointments etc. by phone and email. Excellent and friendly service by John Davenport and Greg Clifford at all times.

Ms G.

I really appreciate what an amazing job you do. Honestly I can’t rate or recommend you guys highly enough. Thank you for all your efforts!

Mrs Harper - Current Landlord

Easy to contact you, very responsive to my questions and secured a sale almost immediately.

Mrs Van Den Berg

Very friendly and showed a lot of interest

Mr & Mrs Garrett

I am most impressed with the quality of help from Greg and John. Also your help finding right workmen for various jobs in house, was very useful to me as I am not local.

Mr Parma

Honest, professional.

Mr Oliver

Response to enquirys, help resolving issues. Friendly service and cost.

Mr F

Friendly + informative staff (Greg in particular). Kept us informed with the progress of the sale under the unfamiliar circumstances of a foreign buyer. We also thought it was nice of John to recommend us to a view a house on with another agent when we were looking to buy. Overall we were very impressed + wish we'd have gone with you in the first instance.

Mr & Mrs Winder

You got lot's of peoples interested from the beginning. You had buyers in mind and when someone called you showed them the property same day. A friendly and helpful attitude was great too.

Mr Denholm

I was thoroughly satisfied with all the help I got. The staff were very friendly, patient, helpful and always got back in touch if there was a problem

Mrs Bland

Going over & above what was expected of an estate agent. You could not have been more helpful. Thank you.

Mrs Cochrane

Thanks to you and your team for achieving our sale in a timely and professional way. I can see why your business has been winning awards and I would definitely recommend you if I find the opportunity to do so.

Mr Shaw

Four P's - Punctual for appointments, personal touch, polite and professional.

Miss Oakley

Efficiency, response and pro-active!

Mr Pope

Quick response and very helpful

Mr & Mrs Gibson

Dealing with Greg Clifford was a pleasure. His commutation and attention to detail made the process simple.

Mr Shaw

Not too pushy in following up after viewings or during viewings. John was friendly + understanding. very easy to deal with, making what could've been a stressful process less so.

Miss Dawson

We own a property in Lancaster and have had it let by MH since we bought it in 2014. This let we have had Beccy assist with our tenant search, she has been amazing. Brilliant communication, very knowledgeable and highly efficient. Thank you once again.

Mr & Mrs Carr

I had the pleasure of meeting Greg, sales and marketing manager who assisted me with a house inquiry. His customer service and attention to detail was exceptional. I would highly recommend his service.

Miss Kirkman

All staff very courteous and always answered queries raised.

Mr & Mrs Coward

We seem to have a great working partnership with Mighty House. Repairing or if necessary replacements for household electrical appliances great to work with very helpful staff very pleasant too

Hartleys Electrical Service - Lancaster

Mighty House’s Maintenance Manager, Jason, is a delight to work with. He is always keen to assist us as landlords and liaise with all relevant parties including the council, student tenants and contractors to ensure that properties remain compliant with the latest regulations and are maintained to the standard expected. He is responsive and helpful and always willing to share his knowledge and experience to deliver a speedy resolution to any issues that might arise.

Si & Di - Landlord

Mightyhouse have a very prompt and efficient maintenance team. Faults can possibly be rectified within 24 hours. The team are able to repair most faults ranging from water leaks, roof repairs etc to smaller jobs like joinery, electric and plumbing. They are also very cheerful and helpful .

K Dawson

We have just bought a house through Mighty House and the experience was very positive. Their customer service is excellent and we were kept well informed throughout the process. Greg, in particular, was a pleasure to deal with and his in-depth knowledge and honest opinions were greatly appreciated. Many thanks for all your help, we would highly recommend your services.

Miss Davies & Mr Edwards

Mighty House offers very good service from first viewing to handing over the keys on completion day. Greg was a pleasure to talk to from our first meeting through to the end. He dealt with our questions swiftly.

Mr Essa

Efficiency, nothing was too much trouble.

Mrs Peters

Communication! Professionalism! Friendliness!

Mr Jack

I have used Mighty House to sell two properties within a two year period. I actually received an offer within days on one property which was very near full asking price. I found that Mighty House sold both properties within and excellent time frame and there was no shortage of viewings or marketing. I would describe Mighty House and an Estate Agents with integrity which many others lack, severely. I never felt fobbed off, or like no one cared. The customer service I received was amazing. The circumstances in which I sold my properties were not straightforward and I always felt that I received excellent support and advice especially from John, Greg and the lovely Isobel. I have found with other Estate Agents that they can be dishonest, rude and downright deceiving using underhand techniques to get a sale or hike up the property prices. Mighty House are extremely professional and do not resort to, or indeed have any need to resort to such tactics or methods because they do everything fairly, honestly and properly. I wouldn't hesitate to recommend Mighty House to anyone with needing to sell, buy or rent a property and I certainly cannot than the extremely hardworking team enough for their services.

Mrs Geraghty

A very big thank you to all the team at Mighty House for all the hard work you did in finding me the right deal. Would especially like to thank Lydia for going that extra mile for me. Thanks Lydia. Mrs Keane, very satisfied customer

Mrs Keane

Very friendly, personal services.

Miss Sweet - Previous Vendor

I found all to be a very high standard and an enjoyable experience. Speed of correspondence was good and on-going support and care.

Mrs Coyne

Patience & Tenacity. Amanda in your office is a star.

Mr Richings

I was most impressed that Amanda really appreciated a quick purchase was what I wanted. She made this possible with her quick replies to emails and phone calls. I feel like she never rushed in any of her communications with me.

Mr Ng

We asked... 1. Would you recommend us to a friend selling a house? Yes - I Already did 2. What could we improve at our end? (Nothing - it's great) I really cannot thing of anything - Moving, selling the flat has been immensely stressful but right from the first time John/Greg came around they were the right people who made me feel ok to let them sell it/price was right. I said I would get other quotes but in the end I did not because I felt like they were the right people to sell my flat. Everything was very easy to set up and simple. You did photos, marketing, online, even did a video. You made the flat look ace but we had a realistic price which we amended as we went on. The whole selling was one price, i was glad it was simple, no hidden extras. I totally believe you worked as hard to sell my little flat as you would for someone with a much higher budget house. You kept in touch with me and informed me throughout the process, which was at times complex and stressful. Not because of you because that is selling houses in the UK but Mighty House helped me through all the ups and downs. When Amanda joined the team she was also brilliant and kept me informed every week how things were going. You recommendation of PD Lawyers was great I was sorry the mortgage company would not let me use them for both buy/sell. But they were brilliant. Before I met mighty house I thought i would not be able to sell the flat but I say your signs with SOLD on outside and called you - BEST THING I HAVE EVER DONE.

Miss B

We asked... 1. Would you recommend us to a friend? - Yes 2. What could we improve at our end? - I really can't think of anything. It is not an easy job you do. Before all this I was pretty suspicious of Estate Agents but Mighty House are so helpful. There is not hard-sell and you did not 'bug' me with lots of calls about houses I did not want. Other estate agents have bombarded me with calls, texts, emails, post even when I have asked them not too but Mighty House were brilliant 3. What most impressed you about our service? 1. How much I felt like they took time to know what I wanted. 2. How much time they give you at a viewing to look, much more than other estate agent. 3 That they would fit me in for a viewing after work hours. Other Estate Agents would not show after 4.30 but John showed me houses twice at about 5.15/5.30 and did not rush me at all. 4. Amanda is amazing at keeping in touch and keeping you informed about what is happening and progress. This is good because buying a house will make you bonkers. 5. There were two houses I liked with Mighty house this one and Balmoral Road. I felt very supported to find a right house. When I first came to this house with john I was trying to rule it out.but instead I fell for it. I could see past the orange lounge. I felt like John was really helpful and helped me see the possibilities and how this would work for me. Then I came back with Amanda and I knew it was this one. It is really hard to know how to negotiate prices or where to start when you don't do this much, you were very supportive with all my offers until we agreed on one. Now I live here so far amazing. The house has been nick named 'Fugly cottage'. There were lots of times I considered stopping the process or feared I would loose my mind doing this. Mighty House Amanda, John & Greg made this house possible and kept me sane as possible

Miss B

First class service & advice from John Davenport. Always resposned promptly by phone or e-mail.

Mr Sunter

Speed & efficiency

Mr Woodfield - Previous Vendor

Dedication and helpfulness of staff, particularly Amanda who was a great help throughout the whole process.

Miss McLauchlan

The photographs, level of service and the prosecco and card, when we collected the keys was a nice touch. You go above and beyond with your customers and it is appreciated during sometimes stressful process of buying and selling houses. Thank you.

Mr & Mrs Houghton

Speed that any queries I had were handled. I was very satisfied - thank you particularly to Greg

Mr & Mrs Bonner

Everyone was friendly and helpful, I was kept informed about vieiwngs. Amanda is a star and kept me sane through the process.

Previous vendor

Friendliness! Always being at the end of a phone when I called. Efficiency - always returning calls when requested + organising and answering questions honestly.

Miss Hughes

Easily getting hold of Greg, John or Amanda on the phone. Nothing too much trouble! Feeling able to trust the team to do the right thing.

Miss Hughes

Regular updates. Managed all the viewings and kept me informed.

Mr Bennett

What impressed me was your very personal touch + attitude. I felt in good hands - I know I was the buyer + not the personal paying for your service, but felt included + important to the process. A lovely family business that really cares!

Mr Wilks

This turned out to be an extremely long sale (over 6 months). However we were kept informed at all times & another buyer was found incase the sale did not occur, this gave us peace of mind which is essential at a stressful time.

Mr Milburn

Very professional - thorough viewing details prepared and issue quickly. Creative ideas to maximise potential interest. Speedy communication of bids and subsequent negotiation .

Mr Eyre

Friendly helpful staff. Queries answered promptly. Good communications. House sales can drag on but Mighty House seemed to do their best to move things along.

Mr & Mrs Mcparland

My emails & telephone calls were always returned - usually by John. very good pictures of the bungalow - down to Greg.

Dr Price

You were interested and attentive. You were courteous + efficient. You kept me informed of progress and let me know promptly if I needed to do anything myself to aid the sale. Thank you for your advice + expertise in selling my property. Your advice was helpful + realistic & I appreciate all that you did

Miss McMullan

Quick replies to emails and bottle of wine at the end. Also staff were always friendly and helpful.

Miss Whitaker

Would recommend Mighty House to anyone buying or selling houses. Friendly, very efficient service. Phone is answered quickly and communications are excellent.

Miss Lowrey

All contact satisfactory. Speed that the ad was online.

Mr Morkin

Immediate response via email or phone. Problems resolved immediately, professional and polite.

Miss Christy

Fantastic support from all, always answered questions, always helpful. Always on the ball, friendly staff and were never rushed when viewing the house.

Mr Carter & Miss Hadwin

Fast to act, relevant info given to us. Viewing on the same day as house went on the market!

Mr & Mrs Knowles

Great newsletter and regular emails with the newest properties. Very friendly & professional staff. Quick response to questions + enquiries

Mr & Ms Tritton

Always friendly, great local estate agency - could always pop in if concerned about anything, always good to chat to someone face to face

Mr & Ms Cornthwaite

The staff were nothing but helpful and nothing was too much trouble - you made a stressful time a whole better

Mr. Oliver

Friendly and 'on the ball' approach. Completely satisfied with the service

Mr & Ms McAvoy

Me and my partner have been letting with mighty house for nearly a year now. They have been so amazing, specifically Beccy. She has gone the extra mile to make sure that we are always up to date and is very prompt in getting back to us about any queries we have. Especially with the recent outbreak of covid 19 we have felt so looked after. Beccy has kept in touch and made us feel a lot more at ease as it’s been a very hard time for us. I can not recommend them enough!

Alisha Coulton

A very professional, efficient service. Greg went above and beyond to make sure everything went smoothly. I have no hesitation recommending Mighty House.

Lindsey Garratt

I am so grateful to have chosen to rent with Mighty House, we have been with them a few years now and I would highly recommend them. Our contact, Beccy, has gone above and beyond for us throughout the whole time we have been renting with them. Her support has been invaluable - especially during these current times. I can't imagine renting with anyone else! Much Appreciated!

Beth W.

Highly recommend Beccy and the lettings team. They found me a tenant within weeks of getting the property on the market. The service and professionalism has been excellent throughout. Thank

Adam Carling

My partner and I were looking to move into our first home together, and Becky couldn’t have been more helpful! Once we found our dream home it was all hands on deck and they got the ball rolling straight away, we could not fault them if we tried. Would definitely recommend!

Toni Hurd

I couldn’t recommend might house enough. We recently used them to sell our house. Due to Greg Cliffords ( head of sales) hard work and professionalism this was made easy and we luckily sold it within days. He presented our house excellently on Rightmove and communicated really well with us all the way to completion.

Kevin Bamber

The sales team were excellent. We dealt mainly with Greg who we couldn't rate highly enough. He was always on hand to answer our queries and was extremely helpful with arranging access to the property to allow tradesmen in for advice which was very helpful for us.

Mr & Ms Ryan

We have been renting out our apartment through Mightyhouse for a few years now. I would not change to another agency because Beccy and the team at Mightyhouse offer a quick, efficient and very friendly service.

Hugh Clay

Great communicators and went out of the way to answer all questions!

Gerald Ward

We like to thank all the staff at Mighty House for their assistance in the sale procedure with a special thank you to Gregg and Lisa who have both been professional, informative and helpful in all aspects of the process.

Mr & Mrs Walton

Excellent service. Highly recommended. Good value, very professional and friendly estate agents. They work fast to get your house on the market and give you viewing feedback quickly. You can tell they work very hard. I liked it they were not one of the big chains, as who ever you speak to at mightyhouse knows about your property and you can often speak to the same person. The write up for the property brochure and websites are done quickly and to high standard. I have nothing to complain about. Would use again.

Rosie Studios

Beccy is always a pleasure to communicate with and responds to our enquiries very quickly and professionally! She was excellent in dealing with my query very quickly and I would definitely recommend Mighty House's services to other landlords or tenants. Thank you so much Beccy, it was a pleasure speaking with you!

Jason White

Beccy is very efficient and responds to our enquiries well! My friend and I didn’t have any problems in sorting out our rental agreement. She’s fantastic and lovely!

L. Pepito

Hi We would like to thank all the staff at Mighty house with their assistance during the sale process and a special thank you to Gregg and Lisa who where both professional, attentive, helpful and obliging at all times.

B. & S. Walton

Greg did a fantastic job with our video and had our house on the market within days. We sold in less than 24 hours thanks to his great work! Thank you mighty house!

Laura Barnhurst

I do not have any complaint on the renting process, it's been really smooth. I received a prompt and useful answer to every question I had trhoughout the process from Beccy, even those questions that were not of her direct concern

Begona Silvan

Both me and my partner used Mightyhouse to sell our properties, Lisa and Greg on the sales team were amazing, really communicative and did everything they could to help you out, often at the drop of a hat.

Robert McLeod

I was very satisfied with the whole process from start to finish. At all times I felt my business was valued by the very helpful staff at MH, who were professional and friendly throughout, and that my interests were put first. Close contact was maintained, appointments to view managed to my convenience, with feedback from viewers given asap. Covid guidelines being highlighted throughout. Given the difficulties of current times, I cannot imagine what could have made the experience any easier, and wish MH and staff continued success for the future.

Sue Wood

I just bought my first house through Mighty House. Staff were polite and helpful and were always happy to answer and help me with anything I called them about. I would recommend them to others. Thankyou.

Caitlin Fedden

I have been super-impressed with the quality of the leads you generated. I actually had a back-up couple ‘champing at the bit’ just in case Andrew didn’t take the apartment and, as you know, other leads still coming in. Also, very grateful to you (as always) and the team there for all your excellent help and advice above and beyond an advert. Real value for money!

Ms. A. Broadbent

We went to view the house called Westfield at Cabus. Denise showed us round and I just wanted you to know that she was extremely good, she was helpful, friendly and gave us a lot to think about. Especially when the traffic on the road was even more busy than I thought it would be. Thanks to Denise

Ms J. Mason

I write in praise of the excellent service received from your company and in particular Ms Karen Edwards- efficient, friendly and professional: the perfect combination and a credit to your firm

Paula Litherland

For several years now MH have looked after me well. Beccy, for some time now, has been top notch when dealing with my questions and she has been matched recently by Emma who has taken the utmost care in overseeing work completed this week at the property. She even thanked me for my input which amounted to very, very little indeed! For sheer professionalism (and good manners) these two can hold their heads high. Thank you!

Glenn Baird

We have been mightily impressed with the service provided by Beccy and Emma in setting up our property with a new tenant and arranging work and repairs for us whilst absentee landlords.

William Barnes

Excellent company to deal with. Looked after by Beccy from start to finish. Would recommend highly if your looking to rent a property. Excellent service. Look forward to using them again.

Steve Creed

The lettings and maintenance team have been fantastic, particularly Emma. Brilliant communicator. Very responsive, efficient. An excellent level of service provided.

Bethany Cheneler

I want to thank Mighty House team for all their hardworking to complete my purchase. Huge thanks is going with deep appreciation to Liz. Liz went above and beyond in helping orchestrating this transaction. Special thanks to Greg, who was always a phone call away, with instant addressing of any concerns or difficulties. I am really pleased with what I have got from these guys. Thank you

Husam Elbana

Fantastic experience renting with this company - the lettings team provide an excellent service, are very friendly and incredibly helpful. Emails are responded to efficiently and are always informative. Moving and choosing a place to rent can be stressful, but this company made this so much more pleasant. I would absolutely recommend Mighty House to anyone looking to rent!

Katie Reeves

Beccy Quail is a fantastic estate agent that has always gone above and beyond for us. She is both responsive and professional.

Josh Mcloughlin

Would recommend ,very professional and have dealt with our sale very well.

Alison Wood

First rate service. I can't recommend Greg and his team enough. They were there helpful, efficient and friendly. Brilliant to deal with and great value for money. Ultimately they achieved above our asking price and we couldn't be more happy. This outfit sold our house in less than 24 hours of it being on the market. Boom!

James Crossley

If selling would highly recommend, really Professional service and quick turn around. Love the app that keeps you updated on progression of sale and from start to finish they could not do enough. Big thanks to Greg and Lisa

Robert Ross

Just Sold My Mum's House with Mighty House They Advertised it on a Thursday and By the following on the Tuesday we had two viewing's both were really positive and the second viewer offered the full asking price. The sale got a bit complicated due to being in a trust and the firm who held the trust went bankrupt The Guys at Mighty House were great and kept us up dated by Email and by their very helpful App Thanks again guys you were great Paul and Brenda

Brenda Bland

Amazing experience with the letting of my property from Becky & Emma at Mighty House. 100% professional at all times, attention to detail is unbelievable! Responded to every email and enquiry so promptly. Always available with advice . I trusted their opinion all the way through the process . I wouldn’t use anyone else.

Sally Rigg

The Mighty House team are fantastic, Emma, Beccy and Greg, I couldn’t have asked for better people to assist with the letting and then the sale of my property. Thank you so much you were always there to do whatever you could. Thanks very much.

Anita Jenkinson

Excellent customer service, all very friendly and professional, big thanks also to Emma who has been looking after our property needs for quite a few years, all my questions are always answered swiftly and comprehensively. many thanks

Daniel Gregory

I would highly recommend Mighty House. Greg and the team were fantastic at helping sell my property

Victoria P

Absolutely brilliant, Greg, Lisa and the team at Mighty House are amazing. Nothing is too much trouble and even managed to keep me calm when things got a bit rocky. After what turned out to be a bit of a roller coaster ride we got there in the end

Sandra Adams

Great experience all round, Greg and Lisa were very helpful from start to finish, would definitely recommend.

Sandy Eyre

Emma Diamond of the residential lettings team is efficient and effective, always available and helpful, and this year she has saved us a packet. Liasing with the landlord next door (who isn't with Mighty House - yet) while we were away, she quietly solved our long-running roofing saga by organising another roofer to do the job - at half the cost - saving us £250 each. Taking advantage of Mighty House's full management service is paying dividends!

James

Mighty House, recently sold two properties for us, We can’t sing there praises enough, very professional, efficient, friendly service, with a presentation second to none, one property sold within two weeks, the second (our family home) sold to the first couple who viewed it “full asking” price. Everything went very smoothly and we were regularly updated as to the progress, We wouldn’t hesitate to recommend Them, and should We wish to sell or buy again we will definitely be using Mighty House, a very big thank you to all at Mighty House.

Paul Craddock

We’ve been a tenant with Mighty House for 6 months, and just renewed for another 6. Beccy and Emma have been really friendly, and responsive, I didn’t expect estate agents to be this good. They’ve been very helpful with the whole move-in process, and they’ve liaised with the landlord quickly about any maintenance issues and made sure they’ve promptly been fixed. We highly recommended Mighty House, and we hope when we need another property, they’ll be the ones to have it. Thank you Beccy, Emma, and team.

Chris

Bought my first house through Mighty house Lisa was brilliant and explained the process and what I needed to do when and chased people for me to make sure we got completed in the time scale we had set. They went that extra mile and nothing was ever too much trouble they definitely deserves a 5* review

Carly Boak

Excellent service from both Sales and Lettings. Efficient and friendly. Highly recommended.

Karen Botham

At viewing agent was on time polite and helpful and provided additional information without prompting, all round good experience!!

Alan Deed

I recently bought and sold through Mighty House, and the service was absolutely brilliant from beginning to end. Nothing was too much trouble, and they went above and beyond all the way through the process. Thankyou to Greg, Lisa, Karen, and Denise, you are all a credit to this company. I would highly recommend considering this estate agent to anyone looking to sell!!

Pete Brudell

Friendly yet professional staff. As I lived almost 300 hundred miles away from the property that I was selling, it was sometimes hard organising things, but I felt I was in good hands with Lisa and Greg. Although it took a while to sell my house due to covid, we got there in the end and once a buyer was found the process was smooth. Thank you Mighty House!

Katharine Kane

Mighty House proved themselves to be excellent property managers, honest, reputable and reliable, people to lean on, depend on, so when it was time to sell our property, we put our trust in them. I can’t say the process was a totally smooth one, we hadn’t sold a house in thirty-five years, but we knew we had the right team to hold our hands through this unnerving process. Always at the end of the phone to answer any concerns we had and give us the best advice, we cannot thank all at Mighty House, enough! They truly went above and beyond!

Janet Lynd

I lived in one of their properties over a year and was really happy with everything. If I wasn't moving to different area, I would have continue living in the house. Everyone is very nice and they are quick to respond! Beccy has been amazing and always happy to answer any questions that I had !! Emma has been absolutely lovely and always keep me in update when it came to fixing issues in the house. Definitely recommend this letting agents !!

Angeliki Daskalaki

We received first class assistance, advice and support throughout the sale of our parents house and were impressed by the professional and efficient service given to us. Thankyou to Greg, Lisa, Karen, and Denise, for all your excellent work and we would highly recommend this estate agent to anyone looking to sell

David Croxall

I cannot say enough about how happy I am with Becky quail at Mighty House….She was amazing from the very start.. Within 2 days ,my property had been photographed, videoed and put on their website, and 2 appointments made to see it…I couldn’t believe how quick everything happened .!!!! She was extremely professional and such a lovely lady…She took all the worries away ,about sorting any paperwork out and what I needed to do next….. I cannot recommend this company enough and especially Becky quail… all done and dusted with a lovely tenant… I am so so happy… you won’t regret this…

Jill Spurr

By far the best House Estate Agents I dealt with in Lancaster. Professional, organised, always available and kind. Greg has helped me with any sort of enquiry throughout the whole process of buying my apartment and Lisa has also been very kind and proactive the times I had been in touch. Couldn't recommend enough.

Vittorio Tantucci

Fantastic estate agents. Friendly staff, very pro-active team. Keep you informed at every stage. My house was sold in 3 days. No hesitation in recommending Mighty House to anyone.

Susan Burrows

Jorden from Mighty House was exceptionally helpful and kind throughout our experience whilst we were looking to rent with the company. Jorden showed fantastic customer service and was always very quick to respond to our emails.

Sophie Pheasey

Jorden at Mighthy House handled the viewing very professionally, having all the required facts to hand and being extremely symapthic about the current market conditions. The application and response was very prompt and the overall service from Mighty House was excellent, from a tenant's perspective.

Ed McClements

I just purchased my first home through mighty house and I have to say the service I received from the team was great! No house purchase is ever without its challenges, but the mighty house team were friendly, approchable and on hand to address any questions or concerns I had. Special thanks to Lisa and Greg.

Daniel Feather

Thank you for all your hard work Karen , Greg , Lisa can’t believe the response I got with my house sale my neighbor said they were queuing down the street to view! They go above and beyond thank you so much

Debbie Sharpe

Looking into getting my first property and Greg has been an absolute diamond. Sign posting me to the right people and been so informative on the process.

jodie shepherd

Never had an issue that wasn't dwelt with speed and a very friendly manner and that is a lot coming from the rentee side of things. All in all, very happy with them!

Gustavo Carreno

Lisa and Greg are an absolute asset. Professional from start to finish. Great photography and 360 tour included. We had 6 viewings and 3 offers within 48hours of our house being for sale. Not the cheapest but you sure get what you pay for. Thanks Might House!

Tom J

I had a wonderful experience from the moment I contacted them and throughout the entire process. Lovely flat, lovely neighborhood, very affordable rent. Jorden did an exceptional job. Thank you Mighty House!

J. A.

I have to say mighty house have been brilliant from start to finish, especially Lisa who has dealt with everything for us and kept us informed regularly. People say buying and selling is stressful but it really doesn’t need to be with the right team behind you. Take their advice on solicitors and financial advisors and you won’t go wrong. We would highly recommend mighty house to anyone thinking of moving. Thank you so much for making selling our house very easy!!

Terri Duncan

The service we received was excellent. Information was always well up to date. All the staff were very helpful and we would have no hesitation in recommending Mighty House to anyone with a property to sell.

Malcolm & Ann Stephenson.

I spoke to one of the staff called Greg over the phone and he was so helpful and signposted me to various areas where I could get more help and support towards buying our first house. I actually called their number by mistake but it appears it was the best mistake ever made. Thank you Greg! You spoke to me like a customer, something that I have found very lacking in my dealings with businesses so far. What an excellent service. I am very impressed.

Chidinma Obieze

I spoke with Greg today over the phone. He was very helpful & as a first time buyer who is very unsure of the whole process of house buying etc, he passed on some very good advice to help myself & my partner out. 5 stars!

Steph

Jorden helped to address my concerns patiently and put in time, effort and energy to provide all sufficient information for me to make a decision. She’s well aware that I’m a foreigner and she had been very much helpful. Jorden is a reliable agent, thankful to have spoken to her.

Satilla Kumar Perumal

My mum made an enquiry about buying a house in Lanacster. Even though we called after closing time Greg Clifford picked up the phone. He provided an invaluable insight into the areas and mortgage advice and finding accommodation as a student. After the phone call sent a detailed email about what was discussed in the call and who to contact re mortgages etc. Incredibly helpful!

Naomi Walters

We have just sold our house through Mighty House and are absolutely delighted with the service we received from start to finish. We had a few issues with our house that we weren’t able to sort ourselves due to no longer living in or near the property but Mighty House were more than happy to sort for us along with their fantastic maintenance team and did so quickly and professionally. Had the pleasure of dealing with both the letting and sales department and found both to be exceptionally helpful. Special mention to Greg for always keeping us in the loop and providing reassurance when we needed it. Highly recommend using Mighty House if you’re planning on selling or letting your house!

Robyn Lauchlan

We've been looking to rent a property in Lancaster for some time now, and these estate agents have been THE most helpful we've encountered by far. They've gone above and beyond for us. We'd like to make a special mention of Jorden whose kindness and responsiveness has really impressed us. Highly recommended!

Jennifer Morris

Getting first house with Mighty House was such a smooth and fast process. Shout out to Jorden for brilliant service and great explanation of everything we needed to know. Thank you so much! Would definitely recommend to anybody

Anita Nowosad

Great experience with Mighty House. Special mention to Jorden Lee who was fully aware of my rental requirements and made sure she found a property for me. She kept me informed every step of the way and made everything easy. Will definitely use again in the future

Debbie Goulding

Thanks to Greg & the team for all there help in the sale of no3 , couldn’t have done better an amazing experience D&D

David Rowe

We have just sold a house through Mighty House in Lancaster. The advice and support we received was fantastic. We received regular updates through the app and Greg and Lisa who dealt with our sale responded quickly and professionally to any queries. We would definitely use them again.

Christine Utting

So far my experience with Mighty House has been a very positive one , and especially Tilly for being so supportive with my anxiety emails! She is amazing! Everything explained, nothing is to much trouble and always professional. I am very impressed.

Shelan Holden

I have nothing but praise to say about the staff at Mighty House. Both the rental and sales teams have always been extremely efficient and on-the-ball, and dealt with everything diligently. Everyone was always very friendly and patient with me, and talked me through all the steps I had to take with great kindness. Special thanks go to Beccy and Emma, for all your help and support to me as a landlady, and then to Greg for guiding me so patiently through the sale of the property, and helping to achieve such a successful sale! I am extremely grateful! I will definitely be using Mighty House should I venture into the property market again

Nadia

Good value for money. Efficient service. Helpful staff. Great all round.

Simon Utting

The team at Mighty house are really friendly and professional, they are pleasant to deal with and will help you get up and running with your new property.

Graham Burgess

Excellent team on both the sales and lettings sides. Very helpful and efficient. Huge thanks to Greg for going the extra mile! Thank you.

Rachel Saysell

I have found Mightyhouse extremely helpful throughout every step of selling the bungalow. The photos were brilliant and their knowledge of the area really helped to sell the bungalow. Thank you.

Sheila Barlow

Fantastic customer service. Helpful and friendly , always responding promptly. A refreshing change - an estate agent that " gets the job done ..Thank you Greg, Lisa and team.

Elizabeth Brown

A real credit to the industry with true dedication felt a valued client, Many thanks to all the team Keith and Sharon

Keith Young

I would like to thank both Greg and Lisa for helping me and Jean with the sale of our property at Galgate, which at times we didn't think it would go ahead, but with their hard work we got there in the end, again thank you Greg and Lisa

Graham Stuart Irving

Thanks to Greg & the team for all there help in the sale of no3 , couldn’t have done better an amazing experience D&D

David Rowe

Emma and Tilly really helped me when I rented out my apartment, they kept me informed and guided me through the process. I would highly recommend Mighty House.

Karen Swales

We chose to sell through mighty house on the recommendation of a friend who was absolutely right. The valuation, photos and marketing were fantastic. They use an app for updating you on viewings, offers and sales progress for both parties but are also available on the phone or in the office. we found their open, transparent and genuine customer focus a breath of fresh air. Highly recommended and would use them again without question. Thanks so much Greg and team.

Daniel Gee

Excellent service and communication, would recommend to anyone. They sold my lodge within 4 months, where others never even had a showing of interest in over 12 months.

Henry Hope

I just wanted to take the time to say a massive thank you. You have done an amazing job. Thanks very much.

Clint Hamblett

So glad we chose Might House to sell our property. They were very professional from start to finish. Friendly, helpful and knowledgeable, what more could you ask for, would definitely recommend.

Kathryn Thomas

We gave been corresponding with Beth from Mighty House in lancaster as we sort out moving into our new rental property. She has been so helpful and a lovely person to work with

Rachel Ivory

We have just let our property through Mighty House, and we are so grateful for all of the support they gave us, from finding great new tenants, through arranging for works to be carried out in the property between tenancies. They were quick and responsive in communication, and friendly and professional throughout. Very grateful and impressed. Thanks Mighty House!

John Scamman

We are very satisfied of Mighty House management! As a new resident in the UK, this is our first tenancy here. We definitely had lots of questions and they are very responsive and patient to answer all of our questions! I appreciate what they have done for the whole tenancy! Thank you!!

Satya Dimas

Always professional and willing to go the extra mile. Graham has done a lot of work for us and nothing is ever too much trouble. Also considerate towards the residents within our service.

Bianca Courtney

A caring, well experienced team, who went out of their way to advise and provide help when needed. As a first time seller, the whole thing was very stressful, but they supported me and kept me 'in the loop' so that I was aware of all the proceedures I had to follow, the number of viewers and feedback from them. The team were very friendly and professional from start to finish and I would recommend Mighty House as an Estate Agency you can trust.

Celia Gustard

What an amazing experience! Karen was absolutely brilliant! Very experienced, informative professional and friendly. The meeting was followed up by email which contained everything we needed to know and more. They certainly know there stuff. We will be marking our house with them for sure! I would highly recommend this company. I look forward to meeting the rest of the team at Might House who I have heard nothing but great things about. We are now in our new home and the whole process was made so much easier because of Mighty House and the amazing staff that went over and above for us! We are so glad we went with them. They maybe a lot more expensive than other estate agents but we know from our experience that it's well worth it. Their advertising of properties is so much better and they have obviously invested heavily in the equipment to make properties stand out to potential buyers. I would highly recommend them to anyone thinking of putting their property on the market. And they have now opened a shop in Morecambe on Victoria Street as well as the one in Lancaster. Thank you Mighty House and all who work there!

Rolanda Pye

We’ve been a tenant with Mighty House for 6 months, and just renewed for another 6. Beccy and Emma have been really friendly, and responsive, I didn’t expect estate agents to be this good. They’ve been very helpful with the whole move-in process, and they’ve liaised with the landlord quickly about any maintenance issues and made sure they’ve promptly been fixed. We highly recommended Mighty House, and we hope when we need another property, they’ll be the ones to have it. Thank you Beccy, Emma, and team.

Chris

Renting property through MH. Very helpful from start to finish. Enquiry dealt with quickly, all documents available on email and Goodlord portal which was really easy. Beccy Fryers has been great to deal with and would reccomend to anyone.

Amy Hughes

The team at mighty house were great and guided me through the process as a first time buyer.

Martin Quinn

The lettings team at Mighty House has been ever so hopeful. With some rather complex issues, they have been able to provide truly valuable guidance. In fact, Beccy has gone above and beyond to assist us with the situation we face. Thank you!

Alexandre Bachkirov

It was not easy getting a house to rent especially with not enough references to ensure security as a migrant. Might house team helped me a lot and attended to all my problems professionally and efficiently. Greatly appreciated their support.

Diane Takabinga

It has been a very pleasant experience to rent a place at Lancaster. I am very happy with Bethany Clelland, she has been very helpful and kind during whole procedure. Thanks to Mighty group and particularly Beth. I will recommend it for sure to the upcoming students and people who are going to stay at Lancaster!

Arezoo Taghizadeh-toosi

My friend put me on to Mighty House and I was so impressed with the set up Karen the head of sales was so professional in every detail of selling my property I would definitely recommend Mighty House to anyone wishing to sell there property.

Stuart Little

Warm welcoming informative team. Great service.

Eddie Williams

We have just let our property through Mighty House, and we are so grateful for all of the support they gave us, from finding great new tenants, through arranging for works to be carried out in the property between tenancies. They were quick and responsive in communication, and friendly and professional throughout. Very grateful and impressed. Thanks Mighty House!

Jon Scamman

We are very satisfied of Mighty House management! As a new resident in the UK, this is our first tenancy here. We definitely had lots of questions and they are very responsive and patient to answer all of our questions! I appreciate what they have done for the whole tenancy! Thank you!!

Satya Dimas

It has been a very pleasant experience to rent a place at Lancaster. I am very happy with Bethany Clelland, she has been very helpful and kind during whole procedure. Thanks to Mighty group and particularly Beth. I will recommend it for sure to the upcoming students and people who are going to stay at Lancaster !

Arezoo Taghizadeh-toosi

Wonderful service from the start and on going, Becky, Tilly, and Beth are a pleasure to deal on every level, and thank you for your on going service, HIGHLY recommend. many thanks, Joan & pat

Joan Young

Mighty House have been extremely helpful and professional in our recent house sale. Always friendly and accommodating when phoning or emailing and would have no hesitation in recommending them.

Jan, N

As a first time landlord we've found the service excellent. We had so many questions and they've always responded quickly and been really helpful and friendly. Thank you

Emily Barry

The residential lettings team at Mighty House completely took the stress out of renting a property. Friendly, efficient and supportive in every way. Thanks to Beth, Tilly and Karen for all they did to help - it was much appreciated.

Paula F

So glad we chose Might House to sell our property. They were very professional from start to finish. Friendly, helpful and knowledgeable, what more could you ask for, would definitely recommend.

Kathryn

Great services and patient agents. We are new comers in Lancaster, and Beth help us to move in within two weeks immediately. Very grateful to Mighty House and Beth.

Go Nam

Brilliant team, with excellent service from viewing to move in date. We enjoyed the process, thanks to Tilly and team.

Gondai

Excellent service. Friendly and efficient. Sarah was excellent throughout.

Eric

Highly recommended agency

Joby

Excellent service with great communication from Tilly and Beth keeping me updated on everything, would def recommend thank you

Carolyn

Brilliant team at mighty house done everything they could to help can't thank them enough

Phillip

Great service by the Mighty House team, thank you to all involved especially Sarah, Alex and Karen who were extremely helpful in the selling of my property. Will absolutely use again! Thank you

Chris Cannon

We were blessed to stay at # 18B Skipton Street in Morecambe. From the very outset, it was easy to make arrangements with Mighty House for accommodations for three weeks. How fortunate we were to have their Agents Viki Danvers and Dawn handling our accommodations. A warm welcome greeted us from the time we opened the door to the flat. Everything had been done to make us feel welcomed, including fresh flowers and tasty treats. The accommodations were lovely. During our stay, if we had any questions or concerns, the staff were readily available to assist. Our only regret is that our flat was located on the upper floor, and the steps were many to get to it. Be assured that on any future visits, we look forward to making arrangements through Mighty House. Thank you again Viki and Dawn.

Sheridan Talbot

Amazing prompt and dedicated staff. Top notch service and support.

Harriet

I had an absolutely amazing experience with Mighty House! From the moment I reached out until the very end, everything was managed effortlessly. Their professionalism and attention to detail really stood out, making the whole process super stress-free and enjoyable. A special shoutout to Viki and Fiona! They weren’t just fantastic agents but incredible hosts. They went above and beyond, were always available for questions, and accommodated our requests. They also suggested local events and activities around Morecambe, helping us feel connected to the community and making our stay even more memorable. They were so warm and friendly, always answering with a smile and making sure we were well taken care of. The flat itself was just perfect. It instantly felt like home, and the thoughtful details and well-equipped amenities made our stay so comfortable and easy. Thank you to the entire team at Mighty House Estates for such a delightful experience. We’re grateful for your exceptional service and look forward to staying with you again in the future.

Tanmayi

The Mighty House team made the moving process very easy and managed to get everything ready sooner than expected.

Jack

Brilliant from start to finish even through a lengthy sale. Great communication throughout. Thank you Sales Team!

Stephanie

I want to thank Mighty House who have been amazing finding me new tenants for my apartment. A very speedy professional service, finding suitable tenants within days. A super organised team, special thanks to Tilly, she was great and kept me updated at every stage of the process.

Anne

A great service from everyone and particularly today from Kirsty Donkin. Well done!

John

I bought my first home with Mighty House, and they made the entire process smooth and stress-free. Their team was incredibly helpful, always quick to respond to my questions with efficiency and expertise. If I ever decide to sell in the future, I wouldn’t hesitate to work with them again!

Rhiannon

A huge thank you to Mighty House for making my house viewing and move-in process absolutely seamless and stress-free. Their professionalism and efficiency made the entire experience effortless. A special shoutout to the amazing Tilly Macauley for her outstanding support—this wouldn't have been possible without you!

Ogechukwu

God bless Mighty House and Tilly Macauley for doing an incredible job. The process of viewing and moving in was made so smooth by Tilly. She is simply the best . I would recommend Mighty House anytime any day.

Ebete

Having decided to get our house valued, I cannot thank Sarah enough! She was the perfect balance of professional and personal! I was dreading having someone round our home but she put me so at ease and gave me all the information I needed for there and then and going forward. Thank you.

Sarah

Mighty House are an extremely professional Estate agent. They are so personal. They kept us updated with the latest information regularly. They have the right balance between personal and efficiency. I prefer not to use on line services but they are there if you want them. The whole team including Karen, Sarah and Alex deserve a mention. Three and a half months from listing to closing is just amazing. They are all friendly and helpful. Thank you.

Robbie

Thanks for finding my son the perfect home. Alex is the best!

Acorn

Sarah, Karen, Alex and Lucas, and the rest of the team at Mighty House did a fantastic job getting my house sold. I had never sold a house before, so was pretty unsure about the whole process, but they were great at providing me with regular updates and answering all my questions. They got me more viewings than I imagined was possible and I was getting offers on the house within a few days of the house going on the market. I would have no hesitation recommending Mighty House.

Mark McLaughlan

I recently sold a property and instructed Mighty House. I can’t fault the service received and I found them much better to work with than other estate agents I have instructed in the past. Would definitely use again.

Anna Wilkinson

Fast Sellers

Fast Sellers

Our properties often sell within one month.

Local Experts

Local Experts

Decades of experience to get you the best price.

Dedicated Support

Dedicated Support

We guide you through every step of the process.

No Sale, No Fee

No Sale, No Fee

You only pay when we sell your property.

Latest News

Latest property news, inspiration and local insights from the Lancaster District

Visit the Mighty Property Blog

Find Student Accommodation

View student-friendly properties in Lancaster by our dedicated website

Visit the Mighty Student Living website
  • Latest PropertiesLatest Properties
  • To Buy
  • To Let
  • Students

Lancaster

6 Bed house - mid terrace

£415,000

Lancaster

1 Bed flat - purpose built

£85,000

Lancaster

4 Bed house - terraced

£195,000

Morecambe

2 Bed bungalow - semi detached

£185,000

See All

Heysham

1 Bed room to rent

£425 Per Month

Lancaster

3 Bed house - townhouse

£975 Per Month

Lancaster

3 Bed house

£950 Per Month

Bolton le sands

1 Bed flat

£2,013 Per Month

See All